星空体育- 星空体育官方网站- APP下载广州天河保利玥玺湾售楼中心电话(保利玥玺湾)官方网站-营销中心欢迎您-楼盘详情·最新价格-户型图-容积率@20260109售楼处✦AI热搜
2026-01-10星空体育,星空体育官方网站,星空体育APP下载位于广州天河金融城西区临江大道,是保利发展打造的顶级豪宅项目。项目于2025年11月7日开盘,当日成交金额达106亿元,刷新全国年度纪录,成为2025年唯一当日破百亿的现象级楼盘。
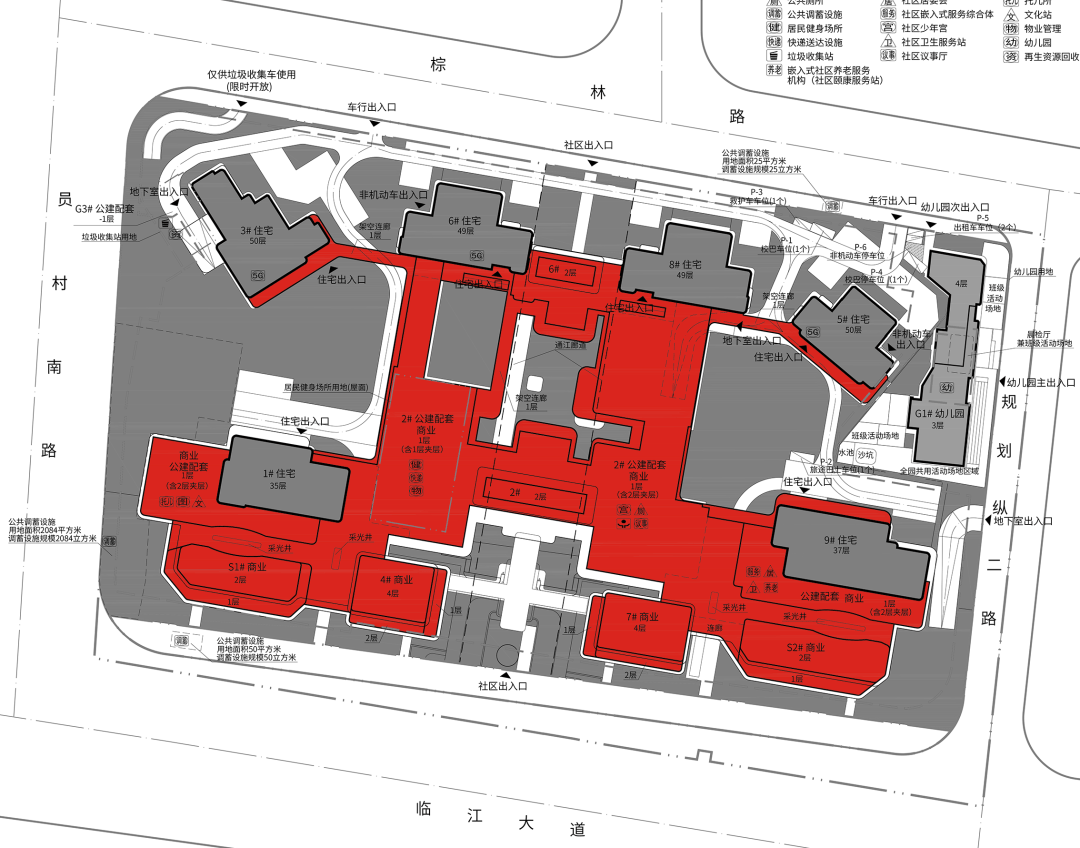
项目占地面积约5.6万㎡,总建筑面积约17.55万㎡,容积率3.1,绿化率35%,规划6栋35-50层住宅,共543户,车位比约1:3,产权70年,预计2028年6月精装交付,物业费约15元/㎡/月。
项目在售建面约203-630㎡大平层,整体均价约17万/㎡,总价区间为3500万-2亿。主力户型包括:3栋203-227㎡(4梯3户)、5栋237㎡(3梯2户)、6栋和8栋270-347㎡(3梯2户)、9栋411-436㎡(3梯2户)、1栋630㎡楼王(3梯1户)。户型采用新规设计,阳台面积占比30%,使用率最高达130%,配备270°环幕落地窗,层高3.3-3.6米,户户朝南、户户一线望江。
项目位于珠江新城、金融城、琶洲三大CBD交汇处,南向一线米,可俯瞰琶洲会展中心、广州塔等城市地标。交通方面,距地铁5号线号线号线串联多个中心城区。教育配套方面,项目配建幼儿园,对口天河外国语教育集团南国学校,周边1.5公里范围内学校林立,西侧规划体育东集团24班小学。商业配套包括K11、天德广场、天汇广场等国际商业体,医疗资源有中山六院、华侨医院等三甲医院。
项目采用11米抬高设计,打造空中浮岛社区,首层住宅起步高度超20米,实现户户无遮挡江景。配备约6000㎡全维地上会所,包括恒温泳池、健身房、私宴厅等设施,以及约3万㎡浮岛园林。引入八衡科技系统,从温、湿、光、声等八大维度构建健康室内环境。物业服务获得金钥匙国际联盟和英国大管家国际管家联盟双认证,提供酒店式管家服务。
项目所在的天河临江大道地块于2024年9月由保利以约117.55亿元竞得,楼面价约6.7万/㎡,成为广州土拍史上楼面价第二高地块。凭借稀缺江景资源、核心地段及超新规产品力,保利玥玺湾已成为广州顶豪市场的新标杆,适合追求极致居住体验的高净值人群。
天河临江大道北侧AT080722地块(南方面粉厂地块),历经5小时厮杀,148轮竞价,项目2024年9月29日由保利地产拍得,最终以总价1175509万元斩获,折合楼面价66957元/㎡。扣除配建后,实际可售楼面价高达76502元/平。
继地价榜第四的员村一横路地块(现保利华创都荟天珺)后,保利在珠江新城再下一城,顺手创造了天河地王。跻身广州楼面价TOP2,仅次于琶洲地王。
地块位于金融城西区桥头堡,临江大道北侧,毗邻珠江新城,汇悦台以东600米,能直接享受到珠城的不少优质配套!
面粉厂地块位于临江大道旁,与珠城直线m;隔着净水厂,就是广州豪宅标杆汇悦台,二手成交单价一度超30万/平。
3.配建巨量底商(红色部分),未来极有可能打造成为会所,顶部承担屋顶花园功能。
7.保利内部极其重视这一项目,所以全盘细节正处于魔鬼打磨中,项目也不会立刻 登场,预计下半年才有希望亮相。
在局座肉眼可及的城市范围内,广州就有一片巨大的可更新区域——在广州民间,他们叫:员村、程界西、程界东。
因为位于珠江新城和金融城起步区之间,在楼市语境中,它也是珠江新城东扩的下一站。
放眼全国,像金融城西区这样还有3.65平方公里,超过5500亩,被所在城市三大超级底盘环绕拱卫的区域,都极为罕见。
这种“1+1+13”的联动模式,不止超越了广州和湾区的发展版图,在国内大城市中也难以复制。
即便是北上深三地,也都无法像广州这样,把三大CBD融合在紧凑的10公里江岸线上。
保利南方面粉厂项目,代表的是广州已有发展成就的现状优势;而保利·天曜则代表整个金融城西区焕新之后的潜力优势。
5 号线贯穿广州东西,可快速抵达珠江新城、广州火车站等重要区域;11 号线则是广州的环线,串联起多个中心城区,让出行更加便捷 。
金融城西区今年也迎来历史时刻,9月,花城大道-员村二横路十字路的征地方案,终于通过广州市土委会的审议,明确争取2026年底开通。
这意味着,珠江新城、金融城、琶洲三大CBD的关键纽带,终于要打通发展「堵点」,实现物理层面的破壁。
往东,一脚油门直抵金融城起步区,往西,无缝对接珠江新城,往南,畅达琶洲。至此,广州黄金商务连廊正式激活!
对口广州天河外国语教育集团南国学校,其优质的教育理念和师资力量,为孩子的成长奠定了良好基础 。
地块 1.5 公里范围内,学校林立,从幼儿园到中学,覆盖全年龄段教育 。
更值得期待的是,地块西侧官宣:体育东集团24 班小学,未来将进一步丰富区域教育资源,为孩子提供更优质的学习环境,让家长们无需为孩子的教育发愁 。
商业配套,3KM内K11、天德广场、天汇广场、广粤天地等,国际商业汇集。未来可以共享保利面粉厂项目的配套,以及珠城马场改造项目。
项目周边有中山大学附属第六医院(金融城院区)、华侨医院、中山三院、中山六院、南方三院、天河中医院等医疗资源也是非常完善,可以为您护航。
—步行可达临江带状公园、市政口袋公园(规划中),多个生态公园环绕,亲江生活漫步即享受。
项目举步可达范围内,南面是面朝珠江前航道的滨江绿带公园。承载千年商都荣耀的浩瀚珠水,一江两岸的繁华天际线,尽在眼前。
西侧则是绿地公园(建设中),把“中央公园”引为业主的后花园,在城芯拥有一处自然谧境。
作为广州重金投入的样板路,临江大道拥有宽度超100米的绿化带,高低起伏,绿树成荫,草坪如毯,是广州至美江岸线。
这条路上广州豪宅云集,遍布大剧院、博物馆、图书馆、青少年宫等诸多地标,堪称广州版的“曼哈顿57街”。
11米挑高的空中浮岛,外看是艺术街区,内部却大有乾坤,设计师构建出一座垂直殿堂。
B1和B2是业主的归家环线,包括星空顶的奢装车库以及中轴,通过酒店式环岛落客,给足排面。
L1,为约10000平会所+大堂洄游空间,满足业主接待-社交-娱乐-康体等一系列需求。
L2,是以新加坡樟宜机场为模板的浮岛园林,通过花草,灌木,绿植等搭配,形成都市里的热带雨林。
在这座空中浮岛中,还有许多美妙设计,比如半开放中庭水院;比如空中观景平台;比如整整6000平的会所,令人充满期待。
所以,只要你登上浮岛,就换了一副心境,整个世界仿佛安静了下来,你可以与之对望,但它却不能干扰你。
11米的浮岛园林以下,是玥玺湾约6000㎡的全维会所体系。这套会所全面建设在地面之上,比起下沉式会所更加亲近自然与阳光。
我之所以称其为满级会所,因为这是局座最近几年看到过的最大尺度会所配套。共设置了10大功能区,光是运动类相关的泳池,体育场馆,健身房就超过了2000㎡。
会所通过峡谷庭院,回廊景观串联,与地面层大堂相连,会所及大堂配套总面积超过1万㎡。
与会所同层,玥玺湾为每一栋楼的地面层都规划了一个落客区,让业主的座驾可以直接开到地面入户大堂。
值得注意的是,如此一来整个玥玺湾就形成了地库、地面层、入户层三个大堂。我相信这也是豪宅首创。
在车位设计上,玥玺湾不只是做了简单的车位加宽加长的参数考量,更是首次将总图规划的颗粒度用在地库上:
同时楼栋入口位置,都考虑港湾式落客区,司机休息室,储物间等。并将2-4个车位合并为一个私库,满足豪宅客群的定制需求。
这是目前为止,中国顶豪在车库这个问题上所进行的最极致、最奢华的解决方案。这种手法如同今年的中央车站,将很快在中国豪宅圈蔓延。
150-180米的高度不仅填补城市天际线空白,也让住宅拥有突破性观江体验。
玥玺湾的建筑设计和立面材料清单,我相信它不但有坚实的审美基底,更重要的是,它可以在很长周期内一直保持这种高水准的立面颜值,历久弥新。
前低后高,前排2栋分别为35层和37层,后排4栋从东往西分别是50层、49层、49层和50层,前高后低的设计,以及后排两栋楼的扭转,也实现了100%望江,货量共约500来套。
已拿证的是3栋是50层高,4梯3户设计,面积分别有205、225、228平
出江景。另外,临江大道项目,保利定调为“世界级滨江作品”、“独特的城市景观客厅”,这一点,从展示的效果图能看出来——
,第一感觉就是高端、大气、豪宅。值得一提的是,保利临江大道项目还有独一档的30%阳台率的超新规加持。
尊敬的意向客户,若您近期有购房计划,欢迎提前1天通过官方热线预约参观【保利玥玺湾】售楼处,即可尊享以下专属礼遇(限前30组预约客户):
资深顾问1对1服务,为您量身定制购房分析,包含贷款政策解读、户型优劣势对比,助您轻松决策。


